Одноповерховий будинок із гаражем – 138 м²
86 900,00$
85 162,00$
Одноповерховий модульно-каркасний будинок із гаражем – 138 м²
Сучасний одноповерховий будинок із вбудованим гаражем, великим open-space простором та окремою майстер-спальнею. Ідеально підходить для сім’ї, яка цінує простір, світло й зручність в усьому.
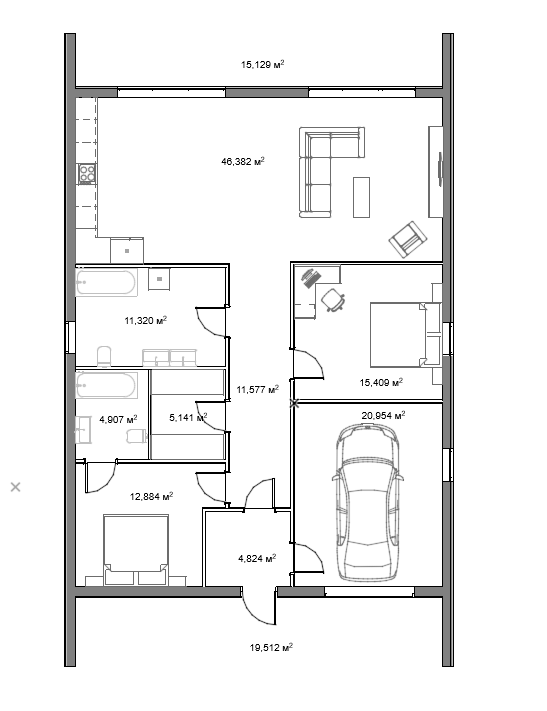
📌 Загальна площа будинку: 138 м²
📌 Кількість кімнат: 3 спальні + велика кухня-вітальня
📌 Гараж: вбудований, на 1 авто
📌 Технологія: каркасно-модульна
Планування:
✅ Кухня-вітальня (open space) – 46,38 м²
✅ Спальня 1 (майстер-спальня) – 15,41 м²
✅ Спальня 2 – 12,88 м²
✅ Ванна кімната 1 – 11,32 м²
✅ Ванна кімната 2 – 4,91 м²
✅ Пральня / технічна кімната – 5,14 м²
✅ Хол / передпокій – 4,82 м²
✅ Коридор – 11,58 м²
✅ Гараж – 20,95 м²
✅ Передній двір/тераса – 19,51 м²
✅ Задній двір/тераса – 15,13 м²
Що входить у вартість:
🏡 Фундамент: бетонна плита
🏡 Гаражні ворота з автоматикою
🏡 Оздоблення:
Зовнішнє: вентильований фасад або дерев’яна вагонка
Внутрішнє: під фінішне оздоблення або "під ключ"
🏡 Комунікації:Повна розводка води, каналізації та електрики
Встановлення двоконтурного котла
🏡 Тепла підлога: у всьому будинку
🏡 Покриття: ламінат + плитка
🏡 Енергозберігаючі вікна з панорамним склінням у зоні вітальні
💡 Цей будинок — втілення стилю та функціональності:
Простора кухня-вітальня, зона відпочинку з великими вікнами, три спальні, два санвузли, місце для пральні та гараж. Ідеальне рішення для сучасної родини!
📞 Зв’яжіться з нами — і ми побудуємо дім вашої мрії!
Кількість






